HOUSE BOUWER

Myoli Beach, Sedgefield

 
 

The first house on Myoli Beach in Sedgefield, House Bouwer, opened with a direct brief: “more of the beach.” What sounded simple quickly became a spatial problem. How do you amplify the horizon without overexposing the house to wind, salt, and glare? How do you open up without giving everything away?

The existing structure suggested an easy answer, a straightforward extension of the living room into the balcony. But the site resisted half measures. Instead of adding space, the project reworked the house’s posture entirely, shifting how it occupies the edge between shelter and landscape.

The result is a deliberate tension between two architectures: a low, grounded base that withdraws and protects, and a pared back contemporary insertion that pushes the envelope just enough to recalibrate the view. It doesn’t perform or cantilever for effect. It simply stretches the interior toward the horizon, turning a glimpse of the ocean into something slower, steadier, and more inhabitable.

 
 
 
 
 
 

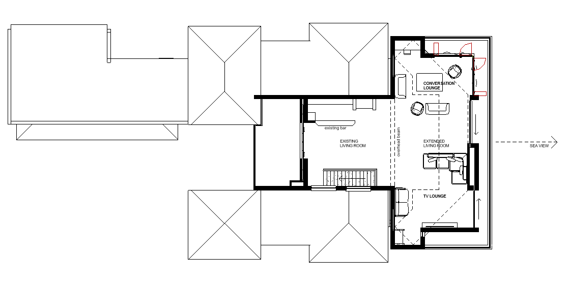
Extending from the existing dwelling, the new space creates two complementary modes of use: one for gathering and entertainment, the other for quieter, more intimate conversation. Each is oriented toward its own view of Myoli Beach, unified by a continuous roof rafter datum that draws the eye outward to the horizon.

Full height glazing faces the beach and can open completely through mullionless stacking and cavity sliding doors, allowing the interior to operate as a single, open volume. The boundary between inside and out dissolves, inviting light, air, and the atmosphere of the coast deep into the plan.

The transition from the tighter existing rooms into this broader volume introduces a sense of release, offering a space that feels generous, calm, and naturally connected to its setting.

 
 

FIRST LEVEL, LIVING ROOM EXTENSION

 

Project:

House Bouwer, Living Room Extension - Myoli Beach, Sedgefield

Client:

Mrs & Mr Bouwer

Area:

106.25m² New

Completed:

2026 (in process)

Collaborators:

Manuel Camurali & J.O (Engineer)